Ruby Shelter is one of the residential development of Ruby Builders And Promoters, located at Irumbuliyur. A blend of elements and meticulous craftsmanship take the project in a league of its own. The integrated plan of Ruby Shelter fits elegantly and seamlessly with your lifestyle.
Location Advantages:. The Ruby Shelter is strategically located with close proximity to all civic amenities such as schools, colleges, hospitals, shopping malls, grocery stores, restaurants, recreational centres etc. The complete address of Ruby Shelter is Irumbuliyur, Chennai, Tamil Nadu, INDIA..
Builder Information:. Ruby Builders And Promoters is one of the leading real estate company which has successfully completed many residential projects.
Comforts and Amenities:. The project is well equipped with all the amenities to facilitate the needs of the residents. Out of many,some amenities included in Ruby Shelter are Car Parking and Security.
Construction and Availability Status:. Ruby Shelter is currently ongoing project. For more details, you can also go through updated photo galleries, floor plans, latest offers, street videos, construction videos, reviews and locality info for better understanding of the project. Also, It provides easy connectivity to all other major parts of the city, Chennai.
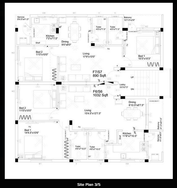
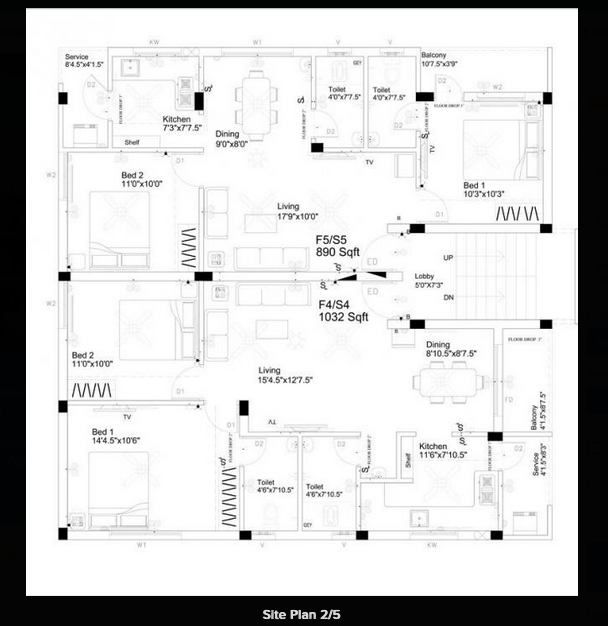
Units and interiors:. It offers spacious and skillfully designed 2 BHK and 3 BHK Apartments at very affordable prices. Ruby Shelter comprises of dedicated wardrobe niches in every room, branded bathroom fittings, space efficient kitchen and a large living space. Proper ventilation is there in every corner of the house. The dimensions of area included in this property vary from 890- 1302 square feet each. The interiors are beautifully crafted with all modern and trendy fittings which give these Apartments, a contemporary look.
Pricing List:
2 BHK – 890 Sqft – Rs. 3115000
2 BHK – 1019 Sqft – Rs. 3566000
2 BHK – 1032 Sqft – Rs. 3612000
2 BHK – 1100 Sqft – Rs. 3850000
Overview
- Category: Apartments & Flats
- Address: Irumbuliyur, Chennai
- Appt Size (in sqft): 890
- Number of Bedrooms: 2
- Number of Bathrooms: 2
- Number of Balconies: 1
- Car Parkings: 1
- Bike Parkings: 1
- House/Villa/Apt Size (Total): 890
- House/Villa/Apt Size (Built up): 890
- Address: Irumbuliyur, Chennai
- Furnished: No
- Nearest Landmark: Irumbuliyur, Chennai
- Amenities: Security(24 hrs), Gates, Intercom, Visitor Pass, Fire Alarm, Temple, Club House, Gym, Jogging Trail, Park, Children Play Area, Yoga Center, Cycle Parking, Car Parking, Power Backup, Trash Collection, Prewired Cable, CC Cameras, Visitor Parking, Elevators, Driking Water Connection, Borewell, Swimming Pool, Tennis Court











Leave feedback about this